Kildebakkegårds Allé – renovering af tagetage

STED Kildebakkegårds Alle, Dyssegård

BYGHERRE Privat

ÅR 2021

AREAL 120 m2

Kildebakkegårds Alle

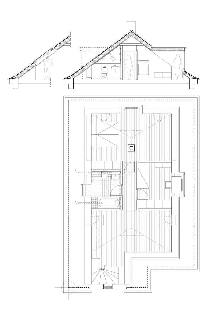
Privat bolig – tag- og loftrenovering

Denne detaljerige villa fra 1920’erne er opdelt i to villalejligheder, hvor tagetagen på 120 m² er blevet totalrenoveret med nyt tag og nye kviste. Renoveringen blev gennemført i forbindelse med en familieforøgelse og omfatter nye værelser, et nyt badeværelse samt en generel opdatering af planløsningen.

Arbejdet er udført med særlig respekt for husets ornamenterede stil. Nye bygningsdele er afstemt i proportioner og materialer, så tagetagen fremstår som en naturlig forlængelse af den historiske villa — samtidig med at funktionalitet og komfort er markant forbedret.